Halo Commercial HC640D010 6" New Construction Downlight Housing, 4000 Lumen
SKU HC640D010
Original price
$0.00
-
Original price
$0.00
Original price
$77.18
$77.18
-
$77.18
Current price
$77.18
Availability:
In stock
Estimated Shipping Widget will be displayed here!
OVERVIEW
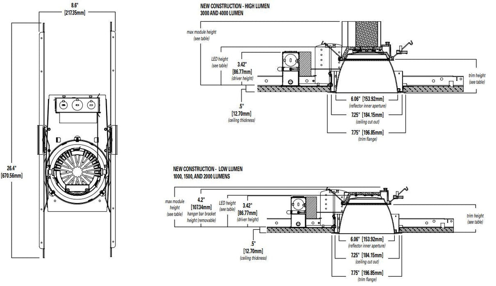
Recessed 6 inch aperture LED downlight for new construction or remodel application.
Compatible Reflector & Module (Sold Separately):
Features
- Trim and light engine sold separately
- Complete installation = Housing + LED module + Trim
- Voltage: 120-277V
- Color Temperature: Depends on LED Module Selection
- Lumens : 4000
- Dimming: 0-10V 1%-100% dimming at 120-277V on 0-10V controls
- Boat shaped galvanized steel plaster frame with adjustable plaster lip accommodates 1/2" to 1-1/2" thick ceilings.
- May be installed in new construction; may be installed from below the finished (non accessible) ceiling in remodeling (with mounting bars removed).
- Provided with (2) old work remodel clips to secure the frame to the ceiling.
- Mounting bracket adjusts 2" vertically from above the ceiling or thru the aperture.
- Use with the included mounting bars or with ½" EMT
- Removable to facilitate installation from below the finished ceiling
- Captive pre-installed No Fuss mounting bars lock to tee grid with screwdriver or pliers.
- Centering mechanism allows for consistent positioning of fixtures
- Non-Conductive "dead front", white, medium beam reflector
Dimensions
- Recessed Size: 6"
- Length: 26.4"
- Width: 8.6"
- Height: 3.42"
Warranty
- 5-Year Limited Warranty
Documents
Labels and Listings
- cULus Certified to UL 1598 / C22.2 No. 250.0, suitable for damp locations and wet locations in covered ceilings only
- Emergency options provided with UL Listed emergency drivers to UL 924 / C22.2 No. 141, suitable for indoor/damp locations.
- IP20 - Above finished ceiling; IP65 - Below finished ceiling
- Airtight per ASTM-E283-04
- EMI/RFI emissions FCC CFR Title 47 Part 15 Class A at 120/277V
- Contains no mercury or lead and RoHS compliant
- 500, 750, 1,000, 1,500 and 2,000 lumen, 90 CRI, ICAT models may be used to comply with State of California Title 24 residential code, per JA8 certification standards
- May be used to comply with State of California Title 24 non-residential code as a dimmable LED luminaire
- ENERGY STAR® certified, reference certified light fixtures database
![]()
![]()

![]()
![]()
![]()
![]()
![]()

![]()